ARS MAGNA RESIDENCE

Architectural project
  • Studio: ZROBIM architects
  • Area: 280.6 m2
  • Year: 2022

Project Description

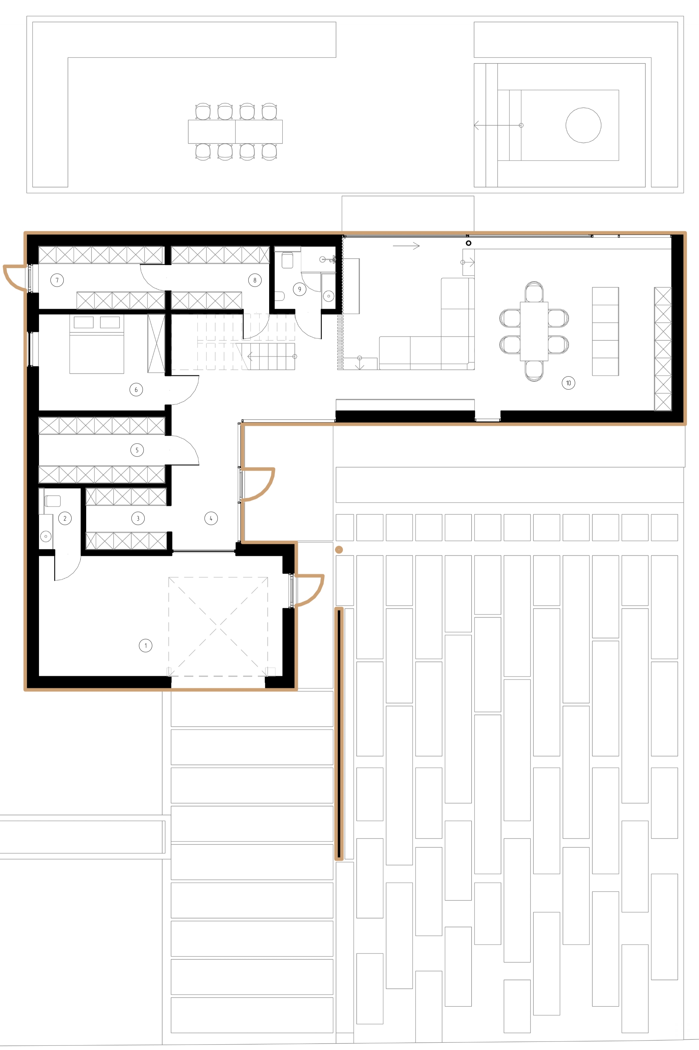
This residence was designed for a creative video blogger, incorporating unique features to meet the client's needs. One key request was a video recording studio on the first floor, with a separate entrance from the street and space to park a motorcycle inside.

We also included a four-car carport at the driveway, offering convenient parking for visitors and direct access to the house without leaving the covered area.

A circular opening in the roof over the parking area softens the home's clean, sharp lines. This design element enhances the facade and reduces the overhang, creating a larger roof bracket.

The open lobby also features full glazing but is set within a "niche," providing privacy from outside views while offering a beautiful outlook and seamlessly blending the interior with the exterior.

1st floor plan

1st floor plan
Plan details

2nd floor plan

2nd floor plan
Plan details


Like this project?

Get an individual consultation with our architect and find out the price for your project


Our projects

Interested in our full portfolio? Click below to view all of our completed projects.

Book A Consultation
And we will answer any questions you have