Rose Valley House

Residential Architecture, PA
  • Studio: ZROBIM architects
  • Location: Rose Valley, PA
  • Area: 2004,4 ft2
  • Year: 2021

Project Description

This project involved the renovation of a house in Pennsylvania located in a picturesque hilly area outside the city. Working with the existing site, elevations, and the total footprint of the house, we completely demolished the original structure. We designed a new modern home, incorporating distinctive American architectural features while maintaining the original foundation.

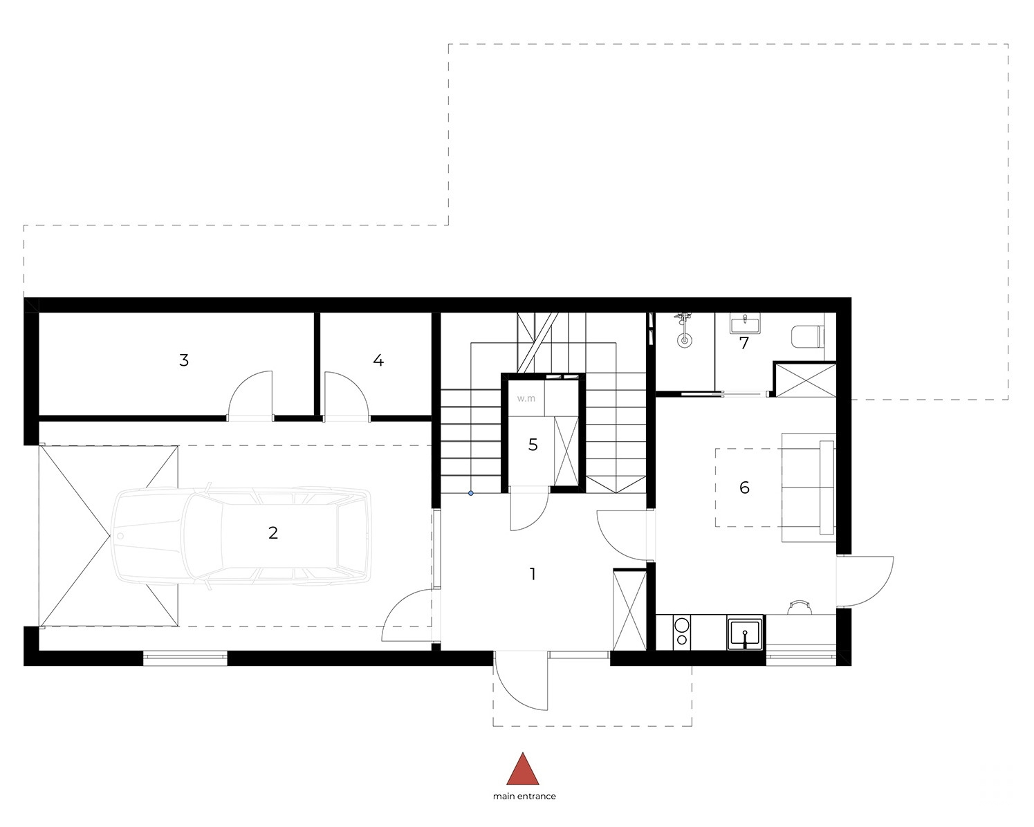
1st floor plan

1st floor plan

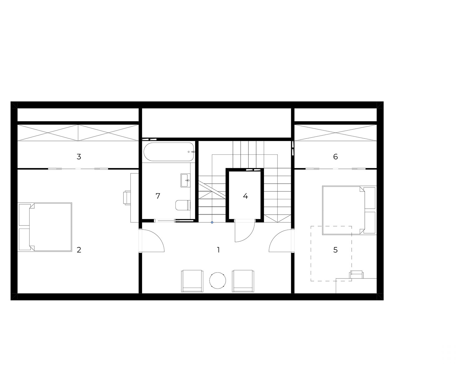
2nd floor plan

2nd floor plan

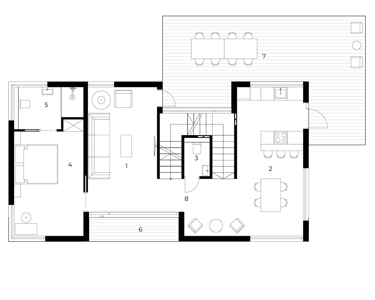
3rd floor plan

3rd floor plan


Like this project?

Get an individual consultation with our architect and find out the price for your project


Our projects

Interested in our full portfolio? Click below to view all of our completed projects.

Book A Consultation
And we will answer any questions you have